Лебедка тяговая ТЛ-14А, ТЛ-14Б, ТЛ-14В предназначена для производства подъемнотранспортных операций при строительных, монтажных и других работах, а также для комплектации строительных подъемных устройств.
Подробное описание
Рассчитана для работы в следующих условиях:
- окружающая среда - невзрывоопасная;
- температура окружающей среды от +40° С до - 40° С;
- климатическое исполнение "У" и "Т", категория "2" по ГОСТ 15150-69;
- рабочее положение - крепление на горизонтальной площадке;
- режим работы легкий;
- рабочее напряжение 380В, частота тока 50Гц.
Срок службы лебедки - 10 лет.
Технические характеристики:
| ТЛ-14А | ТЛ-14Б | ТЛ-14В | |
| Тяговое усилие, кН (т) | 4,2 (0,42) | 6,3 (0,63) | 6,3 (0,63) |
| Расчетная канатоемкость, м | 80 | 80 | 50 |
| Диаметр каната, мм | 6,9 | 7,,6 | 6,9 |
| Расчетная скорость навивки каната на первом слое, м/с | 0,41 | 0,41 | 0,35 |
| Тормоз | ТКГ-160 | ТКГ-160 | ТКГ-160 |
| Редуктор | цилиндрический | цилиндрический | цилиндрический |
| Мощность двигателя, кВт | 3 | 3 | 3 |
| Электрический ток, В; частота, Гц | 380; 50Гц | 380; 50Гц | 380; 50Гц |
| Масса (без каната), кг | 220 | 220 | 220 |
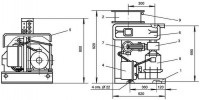
| Габаритные размеры лебедки мм | 920х620х800 | 920х620х800 | 920х620х800 |
Состав лебедки:
- 1.Рама лебедки
- 2.Барабан
- 3.Муфта
- 4.Пусковая аппаратура
- 5.Кожух
- 6.Редуктор
- 7.Тормоз
- 8.Электродвигатель
- 9.Канат






Провод ПЭТВ-2, ПЭВТЛ-2, TIW-B, ПНЭТ, ПСДКТ, ПЭШО, ПЭЛШО, литцендрат ЛЭП, ЛЭЛО,ЛЭШО,ЛЭПКО
Провод гибкий, МПТФ, МПО 33-11, МПО, МПМ, МЛТП, МГТФЭ, НВЭ, НВ-4, НВ-1, ПУГВ, МГШВ, МП37-12, МПЭ37-12, МС, МСЭО16-13, 5-11,26-13, БИФ-Н, БИФ, БИФЭЗ-Н, ПТЛ, БИН
Нихром в лентах, катушках Х20Н80, вольфрам ВА-А-I, молибден проволока М4-I-А, манганин ПЭМ, ПЭШОМ, константан ПЭК, ПЭШОК, фехраль Х23Ю5Т, кабель термопарный


