Перекрывает трубное пространство при спущенном канате, кабеле, проволоке.
Позволяет производить подъем СО (на небольшую высоту) при избыточном давлении на устье скважины.
Преимущества
Существуют модификации:
- Превентор плашечный под НКТ-73 Ду62 (2,5");
- Превентор плашечный под НКТ-89 Ду80 (3");
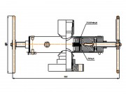
Подробное описание
| Тип верхнего соединения | Тип нижнего соединения | Диаметр каната, мм | Высота, мм | Длина, мм | Ширина, мм | Масса, кг |
| Резьба муфт гладких НКТ-73 ГОСТ 633-80 | Фланец по ТУ | 6,3-14,5 | 283 | 610 | 316 | 32 |
| Резьба муфт гладких НКТ-89 ГОСТ 633-80 | Фланец 100х14 ГОСТ 28919 | 6,3-14,5 | 320 | 670 | 316 | 49 |
Для получения подробной информации и технических характеристик просьба обращаться по телефону (351) 247-28-05 или через электронную систему запроса
















Провод ПЭТВ-2, ПЭВТЛ-2, TIW-B, ПНЭТ, ПСДКТ, ПЭШО, ПЭЛШО, литцендрат ЛЭП, ЛЭЛО,ЛЭШО,ЛЭПКО
Провод гибкий, МПТФ, МПО 33-11, МПО, МПМ, МЛТП, МГТФЭ, НВЭ, НВ-4, НВ-1, ПУГВ, МГШВ, МП37-12, МПЭ37-12, МС, МСЭО16-13, 5-11,26-13, БИФ-Н, БИФ, БИФЭЗ-Н, ПТЛ, БИН
Нихром в лентах, катушках Х20Н80, вольфрам ВА-А-I, молибден проволока М4-I-А, манганин ПЭМ, ПЭШОМ, константан ПЭК, ПЭШОК, фехраль Х23Ю5Т, кабель термопарный


